Duplex/Penthouse te SCHILDE (2970)

€ 589.900

Omschrijving
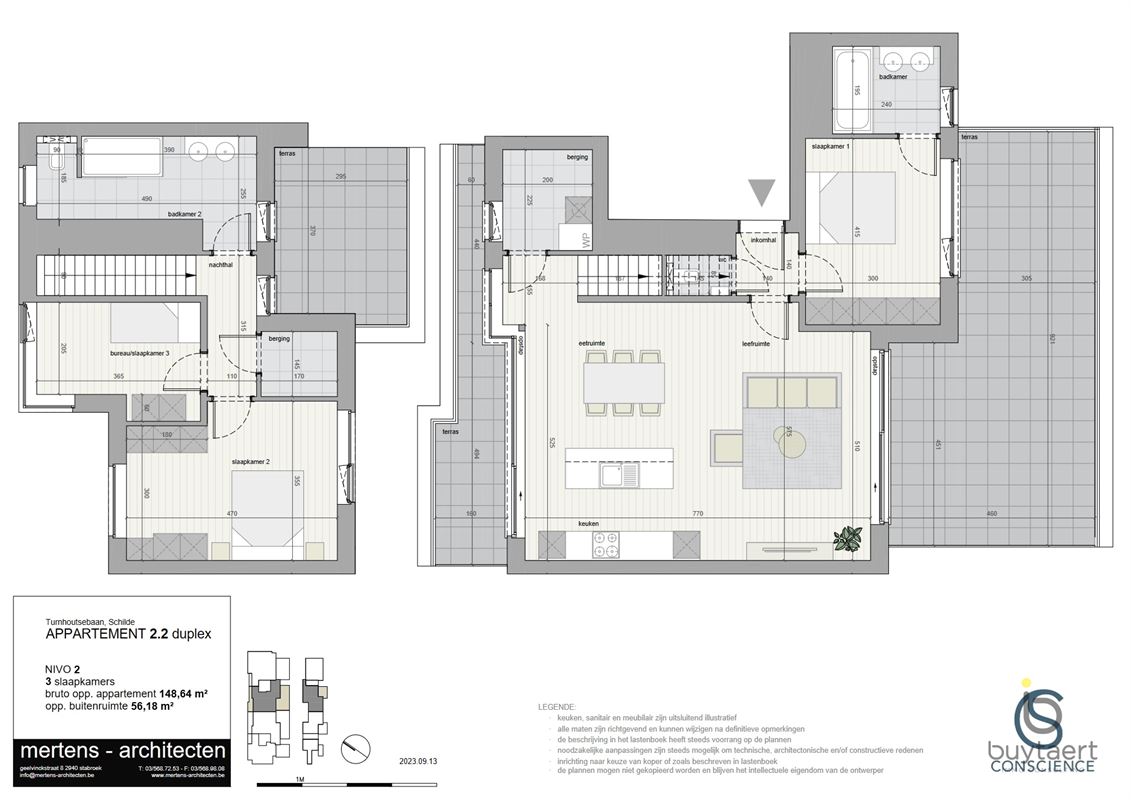
PENTHOUSE: drie slaapkamer appartement in het centrum van Schilde, de werken zijn gestart van deze prachtige NIEUWBOUW Residentie CONSCIENCE. Kopen aan 6% btw op de constructies is hier mogelijk zowel voor enige/eigen woonst als voor investeerders (15j verhuur). Wij informeren u er graag over. In een modern gebouw met lift bevindt zich dit appartement op de tweede verdieping, omvat inkomhal, gastentoilet, leefruimte met toegang tot het terras, privatieve tuin, ingerichte open keuken met alle nodige toestellen, berging/wasplaats met aansluiting voor wasmachine en droogkast, 3 slaapkamers en 2 ingerichte badkamers met een lavabomeubel en inloopdouche of bad. De indeling en afwerking wordt met u persoonlijk besproken. Hiervoor zijn budgetten voorzien in het lastenboek. Residentie Conscience is een project van 'Westhoek', bestaande uit 16 appartementen met één, twee of drie slaapkamers, warvan 4 duplex appartementen/penthouses. De residentie biedt een ideale thuisbasis aan mensen die willen genieten van de gezellige levenssfeer die Schilde te bieden heeft. De appartementen zijn ontworpen met een groot oog voor detail, met veel lichtinval. Dankzij het design en de grote raampartijen ervaart u er het ultieme ruimtegevoel. Het gebouw is zo ingedeeld dat elk appartement over een terras of tuin beschikt. Gezellig ingerichte tuintjes zodat u optimaal kan genieten van de avondzon. De ondergrondse parking zorgt ervoor dat thuiskomen in alle comfort kan gebeuren, voorzien van ondergrondse autostaanplaatsen (+28.900€) of buiten autostaanplaatsen (+15.000€), privatieve bergingen (+ ca 6.000€) - inclusief fietsenberging. Afwerking volgens budgetten in het lastenboek: hoogwaardige materialen, zoals parket, vloerverwarming warmtepomp, gebouwd volgens BEN-principes, E-peil max 30,... Centrale ligging, gelegen nabij het dorp, omgeven door een aangelegde tuin. Vlakbij winkels, openbaar vervoer, gemakkelijke bereikbaarheid, vlakbij fiets- en wandelroutes om de natuur op te zoeken. Prijzen zijn vermeld excl kosten registratie op de grondwaarde en btw op de constructiewaarde, notaris ereloon, aansluitingskosten nutsvoorziening. U bent van harte welkom om de plannen en mogelijkheden samen te bespreken. Plan alvast uw afspraak bij ons op kantoor!
Financiële Info
Prijs
:
€ 589.900
Prijs te verhogen met registratierechten :
wordt voor u berekend
Prijs te verhogen met kosten en ereloon notaris :
wordt voor u nagevraagd bij uw notaris
Comfort
Verwarming
:
Warmtepomp
Beglazing
:
Dubbel
Dakbedekking
:
Andere
Oriëntatie achtergevel
:
Zuid
Type dak
:
Plat dak
Keuken
:
Volledig ingebouwd
Staat
:
Nieuwbouw
Beschikbaarheid
:
Na werken
Stedenbouwkundige informatie
Stedenbouwkundige vergunning
:
Ja
Verkavelingsvergunning
:
Nee
Stedenbouwkundige bestemming
:
Woongebied
Dagvaarding en herstelvordering
:
Geen rechterlijke herstelmaatregel of bestuurlijke maatregel opgelegd
Voorkooprecht
:
Nee
Erfgoed
:
Nee
Energie certificaat
EPC No.nieuwbouw
E spec
:
In aanvraag


Lasten
Algemeen
Adres
:
Turnhoutsebaan 386 / 2.2, 2970 SCHILDE
Bouwjaar
:
2025
Bewoonbare opp.
:
149 m²
Aantal slaapkamers
:
3
Aantal badkamers
:
2
Garage
:
1
Kelder
:
Ja
Google kaart
De kaart vergroten
Uitzicht op straat