Bouwgrond te BRASSCHAAT (2930)

€ 260.000

Omschrijving
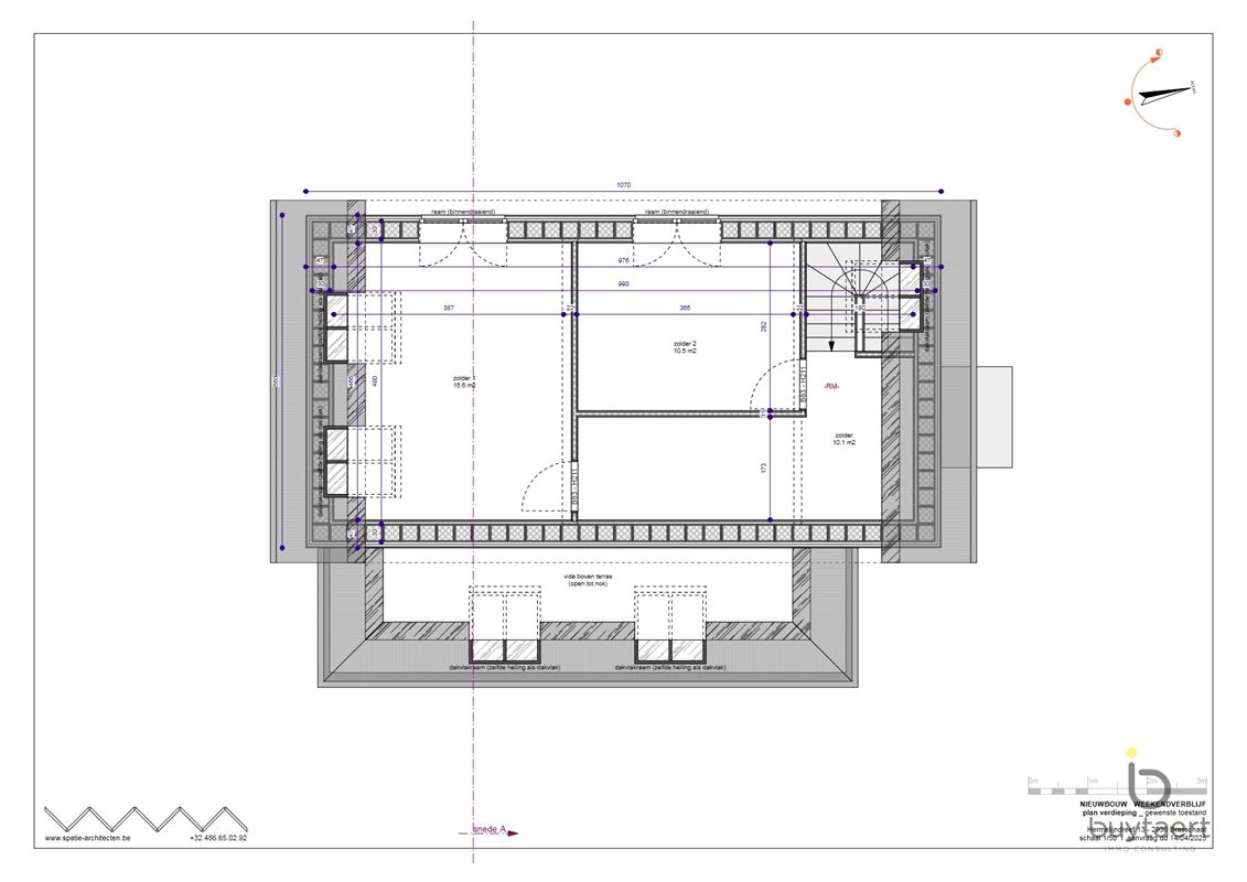
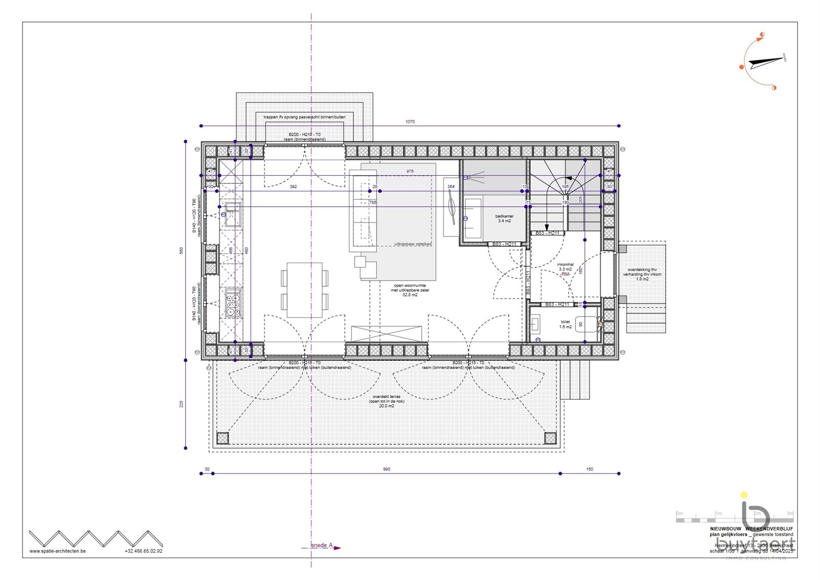
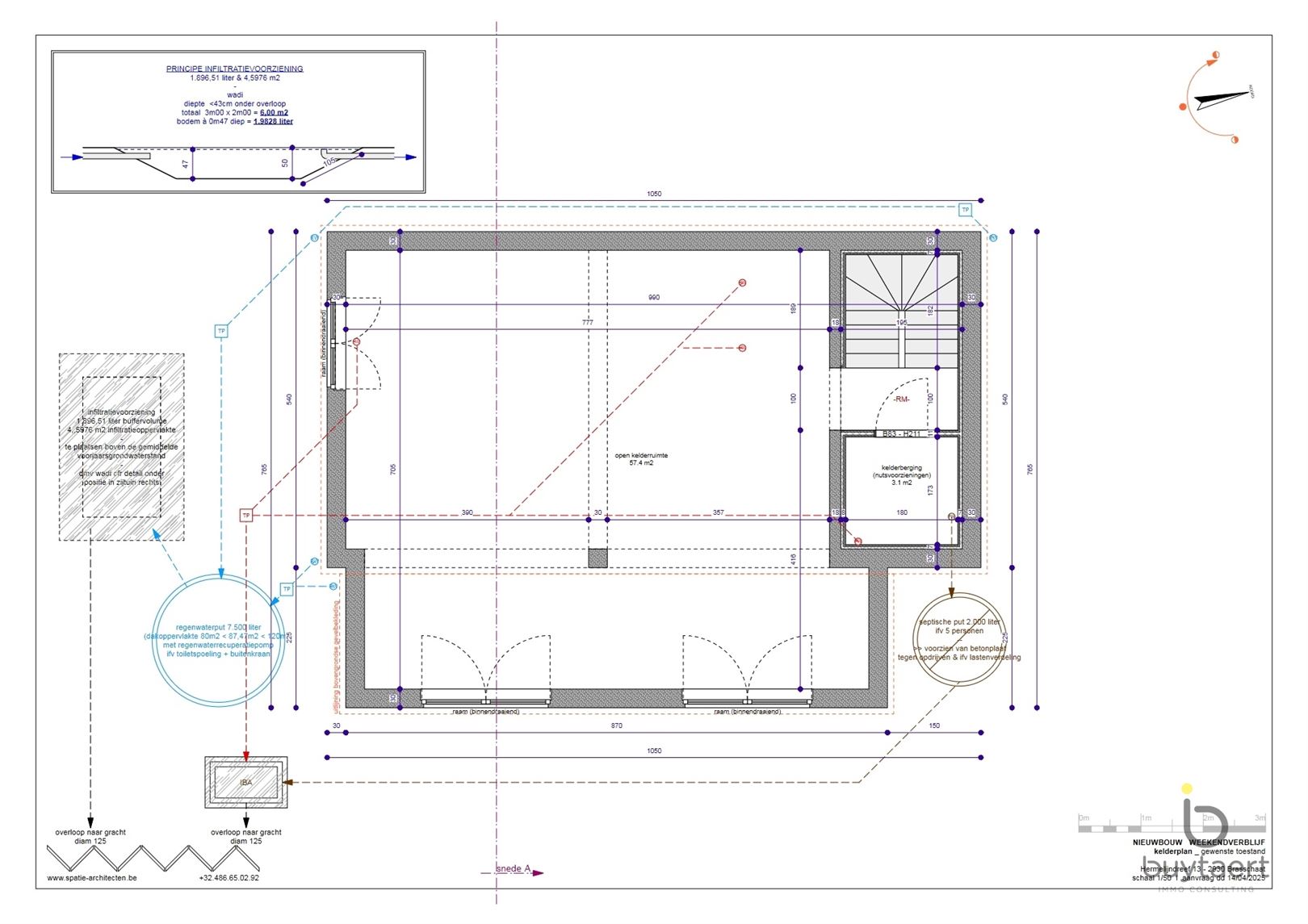
Tof gelegen perceel bouwgrond voor een weekendverblijf op 1.812m² te Brasschaat in een rustige en groene omgeving! De grond met vergunning is gelegen in verblijfsrecreatie met een straatbreedte van ca 20m. Er is een voorwaardelijke bouwvergunning goedgekeurd op 24/04/2025 (2j geldig) voor het bouwen van een weekendverblijf. Klik verder door op de foto's. De vraagprijs is inclusief de overname van de vergunning + plannen (spatie architecten). Vergunning voor een vrijstaande woning met een gevelbreedte van 10,7m: inkomhal, gastentoilet, leefruimte (ca 33m²) met aanluitend overdekt terras (20m²) open keuken, badkamer, twee slaapkamers (ca 16m² en 11m²). Oppervlakte 80m² kelderruimte, 60m²+20m² begane grond, 80m² eerste verdieping, hierbij kom je aan een mogelijke bewoonbare oppervlakte van 220m². Groen en centraal gelegen te Brasschaat met een goede bereikbaarheid en verbinding met uitvalswegen. Prachtige ligging nabij mooie fiets-en wandelroutes. Maak met ons een afspraak om de plannen en vergunning in te kijken!
Financiële Info
Prijs
:
€ 260.000
Prijs te verhogen met registratierechten :
wordt voor u berekend
Prijs te verhogen met kosten en ereloon notaris :
wordt voor u nagevraagd bij uw notaris
Comfort
Verwarming
:
Niet meegedeeld
Type dak
:
Frans dak
Keuken
:
Niet meegedeeld
Staat
:
Nieuwbouw
Beschikbaarheid
:
Bij akte
Stedenbouwkundige informatie
Stedenbouwkundige vergunning
:
Ja
Verkavelingsvergunning
:
Niet van toepassing
Stedenbouwkundige bestemming
:
Ander type gebied
Dagvaarding en herstelvordering
:
Geen rechterlijke herstelmaatregel of bestuurlijke maatregel opgelegd
Voorkooprecht
:
Nee
Erfgoed
:
Nee
Energie certificaat
EPC No.nieuwbouw
E spec
:
In aanvraag


Lasten
Algemeen
Adres
:
Hermelijndreef 13, 2930 BRASSCHAAT
Grondoppervlakte
:
1812 m²
Bebouwde opp.
:
80 m²
Bewoonbare opp.
:
220 m²
Breedte voorgevel
:
11 m
Perceel breedte
:
20 m
Google kaart
De kaart vergroten
Uitzicht op straat