Appartement te SCHILDE (2970)

€ 347.000

Omschrijving
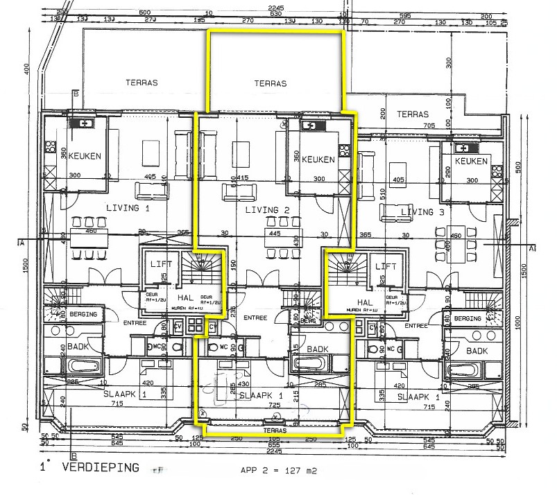
Energiezuinig (EPC B) duplex appartement met ruim zonneterras in het centrum van Schilde. Keuken en badkamer nog naar eigen wens (verder) af te werken. Dit appartement op de eerste verdieping, met een tweede ruime (slaap)kamer op de tweede verdieping, is gelegen op een zeer centrale locatie, in de nabijheid van winkels, bushalte, wandel- en fietspaden,…. Het appartement werd gebruikt als kantoor voor een vrij beroep. Vandaar dat de keuken (13 m²) slechts beperkt maar kwalitatief werd ingericht (oven, koelkast, afwasmachine, opbergkasten). De voorziene ruimte voor de badkamer (7 m²) kan nog volledig naar persoonlijke smaak ingericht worden (aansluitingen zijn voorzien). Het is een gezellig, functioneel appartement, met overwegend massieve strokenparket Franse eik (keuken: getrommelde arduintegels; WC: marmer; berging: keramische tegels; binnentrap blauwe hardsteen). De mooie leefruimte (40 m²) geeft direct uit op het groot terras achteraan (26m²) met vrij uitzicht. Het appartement beschikt over twee ruime slaapkamers (20 m² + 18 m²) met maatkasten. De ruime inkomhal, eveneens met inbouwkasten, geeft toegang tot een handige berging, met machine-aansluitingen. Afzonderlijk toilet. Op -1 bevindt zich een ruime privatieve kelderberging (5 m²) en een gemeenschappelijke fietsenstalling. Via de inrit in de aanpalende zijstraat, krijgt men vlot toegang tot de autostaanplaats in de garage met automatische toegangspoort en toegang tot de lift. Deze autostaanplaats is extra aan te kopen voor €25.000. Maandelijkse kosten €215 (verzekering gebouw, syndicus, onderhoud gemeenschappelijke delen, lift) + €50 spaarfonds. Contacteer ons voor meer info of plan een bezoek aan dit pand! www.buytaertimmo.be
Financiële Info
Prijs
:
€ 347.000
Kadastraal inkomen
:
€ 1.200
Prijs te verhogen met registratierechten :
wordt voor u berekend
Prijs te verhogen met kosten en ereloon notaris :
wordt voor u nagevraagd bij uw notaris
Comfort
Verwarming
:
CV op gas
Beglazing
:
Dubbel
Dakbedekking
:
Pannen
Aansluiting waterleiding
:
Ja
Telefoon
:
Ja
Teledistributie
:
Ja
Electriciteit
:
Ja
Aansluiting aardgas
:
Ja
Riolering
:
Ja
Oriëntatie achtergevel
:
Noordwest
Type dak
:
Zadeldak
Keuken
:
Kasten met toestellen
Comfort binnen
:
Videofoon, Garagepoort met afstandsbediening
Staat
:
Direct bewoonbaar
Beschikbaarheid
:
Bij akte
Stedenbouwkundige informatie
Stedenbouwkundige vergunning
:
Ja
Verkavelingsvergunning
:
Nee
Stedenbouwkundige bestemming
:
Woongebied
Dagvaarding en herstelvordering
:
Geen rechterlijke herstelmaatregel of bestuurlijke maatregel opgelegd
Voorkooprecht
:
Nee
Erfgoed
:
Nee
Energie certificaat
EPC No.20260203-0003789488-RES-1
E spec
:
107 kWh/m².jaar


Lasten
Lasten eigenaar
:
€ 265
Commentaar
:
Maandelijkse vaste kosten + spaarfonds
Algemeen
Adres
:
Turnhoutsebaan 253, 2970 SCHILDE
Bouwjaar
:
2004
Bewoonbare opp.
:
127 m²
Aantal slaapkamers
:
2
Aantal badkamers
:
1
Kelder
:
Ja
Google kaart
De kaart vergroten
Uitzicht op straat