Appartement te ANTWERPEN (2000)

€ 1.150

Omschrijving
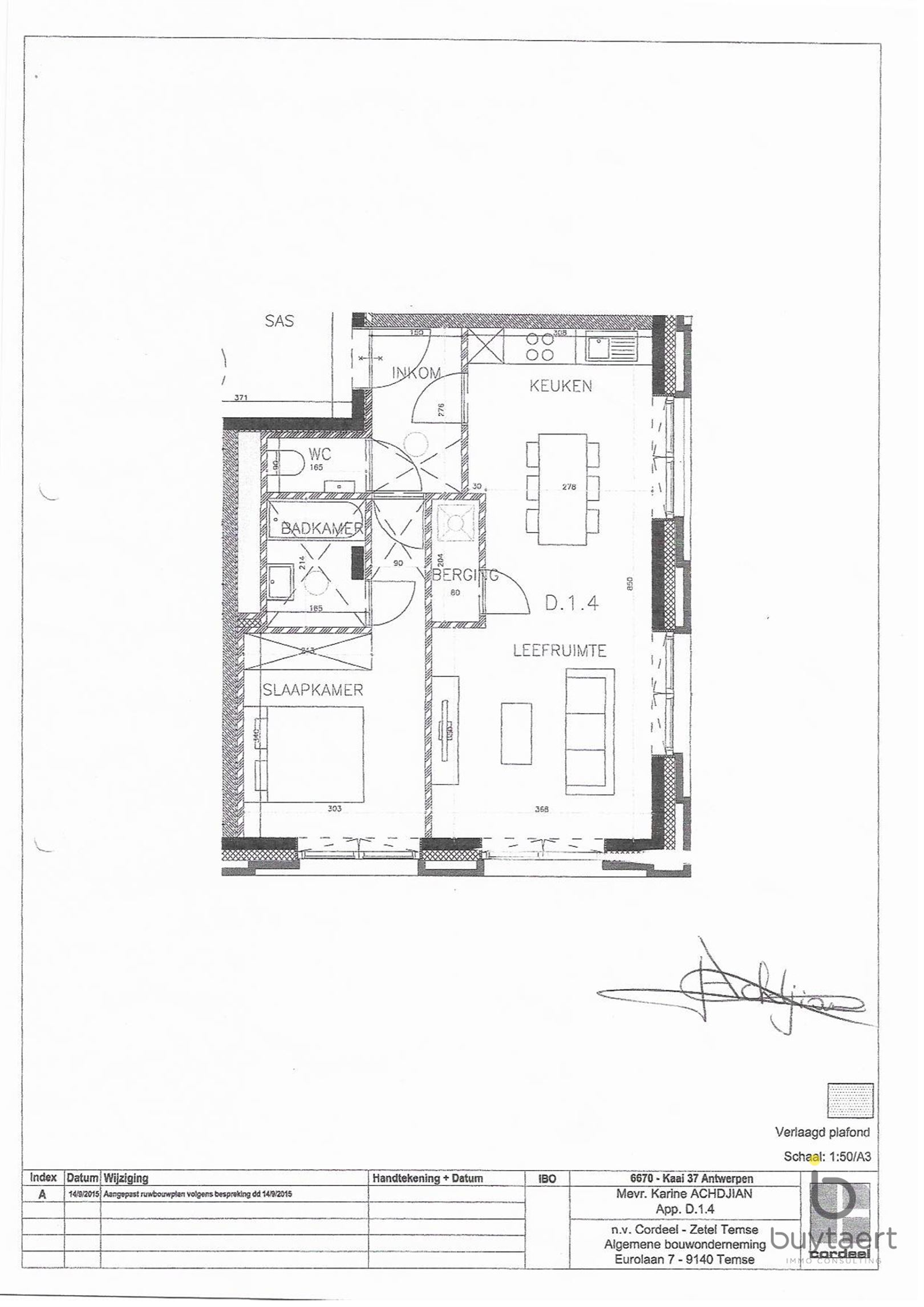
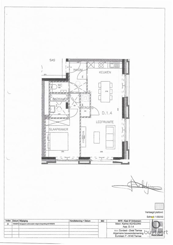
In een recent en energiezuinig gebouw uit 2017, midden op het bruisende Eilandje, bevindt zich dit instapklare en modern afgewerkte één slaapkamer appartement. Dankzij het EPC A-label en de aanwezige zonnepanelen geniet u hier van een zeer laag energieverbruik.. U komt binnen in een verzorgde inkomhal die overgaat in de lichtrijke leefruimte (31 m²) met grote raampartijen en toegang tot het oostelijk georiënteerde terras (8 m²) met zicht op de jachthaven. De open, volledig uitgeruste keuken sluit mooi aan op deze ruimte en beschikt over een handige, aangrenzende berging met aansluiting voor wasmachine en droogkast. Het appartement beschikt verder over een apart gastentoilet, een moderne badkamer (3.5 m²) met bad/douchecombinatie en een rustige, ruime slaapkamer (10.5 m²) pal naast de badkamer. Dankzij de uitstekende lichtinval, het zicht op het water, de vlotte parkeermogelijkheid met bewonerskaart, de gemeenschappelijke binnentuin en de fietsenberging op -1, is dit appartement een bijzonder aangename plek om te wonen in een levendige, maar toch rustige stadsomgeving. Het appartement is onmiddellijk beschikbaar. De maandelijkse vaste kosten bedragen €90 p/mnd, met een forfait voor verwarming van €80 p/mnd. Gelegen op wandelafstand van het MAS, het Red Star Line Museum, gezellige horecazaken en winkels, én met vlotte verbindingen naar het centrum en belangrijke uitvalswegen, is dit de ideale thuis voor wie comfortabel, energiezuinig en centraal wil wonen aan het water.
Comfort
Verwarming
:
CV op gas
Beglazing
:
Dubbel
Dakbedekking
:
Roofing
Aansluiting waterleiding
:
Ja
Telefoon
:
Ja
Teledistributie
:
Ja
Electriciteit
:
Ja
Aansluiting aardgas
:
Ja
Riolering
:
Ja
Oriëntatie achtergevel
:
West
Type dak
:
Plat dak
Keuken
:
Kasten met toestellen
Comfort binnen
:
Garagepoort met afstandsbediening, Domotiek, parlofoon
Staat
:
Nieuwbouw
Beschikbaarheid
:
Onmiddellijk: 01/11/2025
Stedenbouwkundige informatie
Erfgoed
:
Nee
Energie certificaat
EPC No.11002-G-2014_167106/EP13217/A002/SD004
E spec
:
65 kWh/m².jaar


Lasten
Lasten huurder
:
€ 90
Commentaar
:
€90 vaste kosten + €80 forfait verwarming
Algemeen
Adres
:
Indiëstraat 71, 2000 ANTWERPEN
Bouwjaar
:
2017
Bewoonbare opp.
:
67 m²
Aantal slaapkamers
:
1
Aantal badkamers
:
1
Google kaart
De kaart vergroten
Uitzicht op straat